21 Jul Dedicated Theater Room Design & Construction in Morris County, NJ
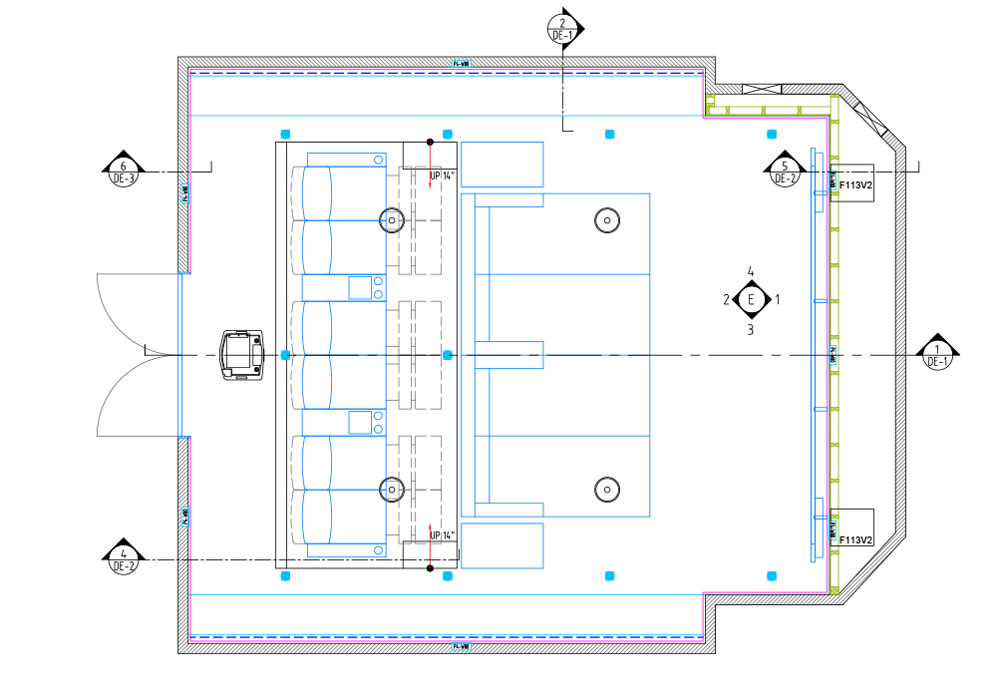
PAC Is currently constructing a dedicated theater room in a home in Morris County, NJ. These are digital renderings of what the finished project will look like. Seating for eight people and conveniently located snack tables are all included in the design. The entire room is acoustically tuned and treated for best sonic performance. Over a dozen speakers are concealed behind the acoustic treatment in the front, sides, rear walls and in the ceiling. Our client and his entire family is looking forward to the completion of this project for the holiday season.










